
Interné ID: | IIB_5E |
---|---|
Ulica: | Ruppeldtova |
Mestská časť: | Jahodníky |
Obec: | Martin |
Okres: | Martin |
Kraj: | Žilinský kraj |
Druh: | Byty |
Typ: | Predaj |
Typ bytu: | 2-izbový byt |
Iné: |
Exkluzívne ponúkam na predaj 2 izbový byt s balkónom, v novom developerskom projekte "Byty Ruppeldtova", nachádzajúci sa vo vyhľadávanej lokalite širšieho centra mesta Martin, konkrétne na ulici Ruppeldtova, podľa ktorej je projekt aj pomenovaný.
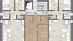
Ponúkaný 2 izbový byt II.B_5E, má celkovú výmeru 46,49 m2, (podlahová plocha bytu 38,20 m2 + 7,07 m2 balkón + 1,27 m2 pivnica), nachádza sa na 2/4 podlaží s výťahom.
Byty sú predávané s vyšším stredným štandardom, ktorý zahŕňa vstupné bezpečnostné dvere, interiérové dvere, omietky stien a stropov, laminátové podlahy, keramický obklad, dlažbu a sanitu, podlahové kúrenie, príprava na klimatizáciu, príprava pre vonkajšie žalúzie. Štandard neobsahuje kuchynskú linku, zariadenie bytu a svietidlá.
Súčasťou každého z bytu je priestranný balkón alebo terasa.
Zámerom tohto developerského projektu je vybudovať moderný bytový komplex, pozostávajúci zo šiestich bytových domov, celkom s 57 - mimi bytovými jednotkami, 7 - mimi komerčnými nebytovými priestormi, vrátane dostatočného počtu vnútorných a vonkajších parkovacích miest, spolu 6 garáží a 76 parkovacích miest.
Výstavba prvej etapy bola úspešne ukončená v roku 2024, všetky byty a nebytové priestory sú predané.
V druhej etape prebieha výstaba ďalších dvoch bytových domov Ruppeldtova I.B a Ruppeldtova II.B.
Bytový dom II.B, v ktorom sa nachádza aj tento byt, pozostáva z jednenástich bytových jednotiek (z čoho 6 bytov je trojizbových, dva byty sú 2 izbové s balkónmi a 3 byty sú dvojizbové s predzáhradkami).
Projekt vďaka svojej výnimočnej lokalite, ponúka kompletnú občiansku vybavenosť, ktorá zahŕňa v pešej dostupnosti niekoľkých minút školy, škôlky, potraviny, nákupné centrum, reštaurácie, a tiež nemocnicu, polikliniky a iné zdravotnícke zariadenia.
Momentálne je byt vo výstavbe, predpokladaný termín ukončenia a kolaudácie je koniec leta 2026.
Cena bytu je 136 200 € s DPH. K bytu je potrebné dokúpiť parkovacie miesto v cene 12 300 € s DPH.
V prípade záujmu o viac informácií ma kontaktujte: Mgr. Milan Valušek, tel. 0904 742 743, mail: valusek.m@bubyreality.sk, alebo na stránke www.bytyruppeldtova.sk
maklér