
Interné ID: | MT5031538 |
---|---|
Mestská časť: | Bôrik |
Obec: | Žilina |
Okres: | Žilina |
Kraj: | Žilinský kraj |
Druh: | Byty |
Typ: | Prenájom |
Typ bytu: | 2-izbový byt |
Iné: |
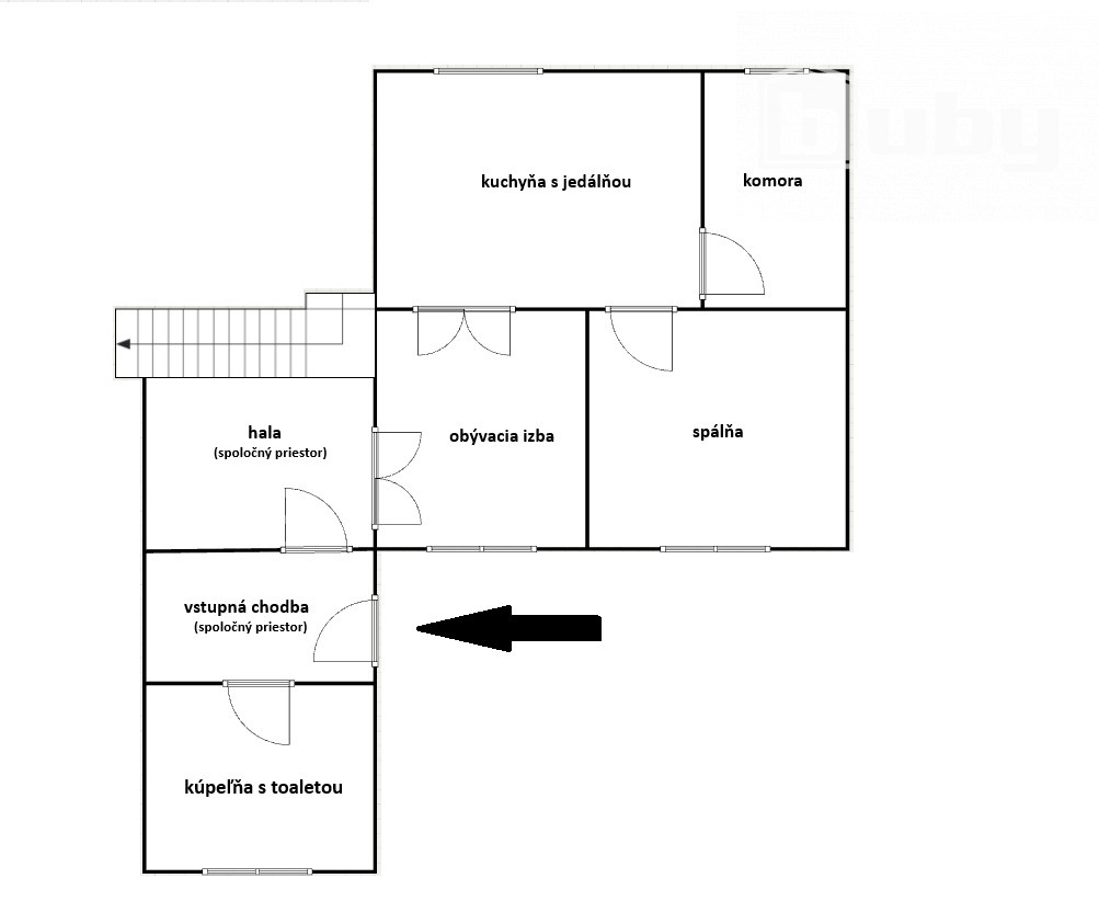
Na prenájom 2 izbový byt v rodinnom dome, vo vyhľadávanej lokalite na Bôriku, v Žiline.
Byt sa nachádza na prízemí rodinného domu a tvorí ho spoločná vstupná chodba, spoločná hala/predsieň, samostatná obývacia izba, kuchynská linka s jedálňou, spálňa a kúpeľňa so sprchovacím kútom a toaletou.
Parkovanie pre jedno auto, vo dvore rodinného domu.
Byt sa prenajíma zariadený, viď fotografie.
Vhodné pre max. 2 osoby, bez domácich zvierat.
Cena prenájmu 620 €/mesiac, vrátane energí, služieb a internetu.
Pre viac informácií ma neváhajte kontaktovať : Mgr. Milan Valušek, tel 0904 742 743, mail: valusek.m@bubyreality.sk
maklér