Používame cookies

Súbory cookie a ďalšie technológie sledovania používame na zlepšenie vášho zážitku z prehliadania našich webových stránok, na to, aby sme vám zobrazovali prispôsobený obsah a cielené reklamy, na analýzu návštevnosti našich webových stránok a na pochopenie toho, odkiaľ naši návštevníci prichádzajú. Viac info

 

Novostavba na predaj, rodinný dom, obec Slovany, okres Martin.

Interné ID: MT5021491
Ulica: Slovany
Obec: Martin
Okres: Martin
Kraj: Žilinský kraj
Druh: Domy
Typ: Predaj
Typ domu: Rodinný dom
Iné:
134 000 €

Popis nehnuteľnosti

Na predaj novostavba rodinného domu, typu bungalov v obci Slovany, okres Martin.

Jedná sa o nový projekt rodinného domu, v novovznikajúcej časti Borovice.

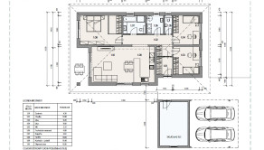
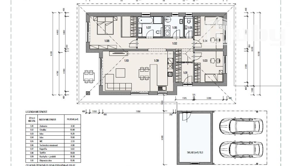
Dom je 4 izbový, postavený je na pozemku o celkovej výmere 702 m2, zastavaná plocha domu 132 m2, úžitková plocha 106 m2.

Predáva sa v štádiu hrubej stavby (základy, obvodové múry, priečky, drevený krov, krytina - škridľa,).

Dispozične je dom rozdelený na dennú a nočnú časť. Pozostáva zo vstupnej chodby so zádverím, troch samostatých nepriechodných izieb, kúpeľne, samostatnej toalety, technickej miestnosti a veľkej obývacej izby spojenenej s kuchyňou a výstupom na terasu.

Napojenie na IS :  elektrina, obecný vodovod, kanalizácia.

Znížená cena domu 134 000 €. 

Pre viac informácií ma neváhajte kontaktovať: Mgr. Milan Valušek, tel. 0904 742 743, mail: valusek.m@bubyreality.sk

Vlastnosti

Status:
aktívne
Vlastníctvo:
osobné
Plocha pozemku:
702 m2
Typ zeme:
rovina
Teritórium:
Intravilán
Šírka pozemku:
20 m
Dĺžka pozemku:
30 m
Úžitková plocha:
106 m2
Zastavaná plocha:
132 m2
Podlahová plocha:
106 m2
Stav:
novostavba
Počet izieb:
4
Energetický certifikát:
A
Energetická náročnosť budovy:
Nízkoenergetický
Typ budovy:
tehla
Terasa:
áno
Rok výstavby:
2023
Rok kolaudácie:
2024
Počet poschodí od prízemia vyššie:
1
Celková plocha:
702 m2
Počet terás:
1
Orientácia:
juhozápad
Inžinierske siete:
áno
Voda:
áno
Elektrika:
áno
Kanalizácia:
áno
Status:
aktívne
Vlastníctvo:
osobné
Plocha pozemku:
702 m2
Typ zeme:
rovina
Teritórium:
Intravilán
Šírka pozemku:
20 m
Dĺžka pozemku:
30 m
Úžitková plocha:
106 m2
Zastavaná plocha:
132 m2
Podlahová plocha:
106 m2
Stav:
novostavba
Počet izieb:
4
Energetický certifikát:
A
Energetická náročnosť budovy:
Nízkoenergetický
Typ budovy:
tehla
Terasa:
áno
Rok výstavby:
2023
Rok kolaudácie:
2024
Počet poschodí od prízemia vyššie:
1
Celková plocha:
702 m2
Počet terás:
1
Orientácia:
juhozápad
Inžinierske siete:
áno
Voda:
áno
Elektrika:
áno
Kanalizácia:
áno

Informatívna úverová kalkulačka

Pozrieť na mape

Maklér

Mgr. Milan Valušek

Mgr. Milan Valušek

maklér

  • Slovensky
  • Česky
  • English

Radi Vám poradíme

Podobné nehnuteľnosti