Používame cookies

Súbory cookie a ďalšie technológie sledovania používame na zlepšenie vášho zážitku z prehliadania našich webových stránok, na to, aby sme vám zobrazovali prispôsobený obsah a cielené reklamy, na analýzu návštevnosti našich webových stránok a na pochopenie toho, odkiaľ naši návštevníci prichádzajú. Viac info

 

Novostavba rodinného domu, v Martine - Tomčany, na predaj.

Interné ID: MT5021529
Ulica: Tomčany
Mestská časť: Tomčany
Obec: Martin
Okres: Martin
Kraj: Žilinský kraj
Druh: Domy
Typ: Predaj
Typ domu: Rodinný dom
Iné:
369 000 €

Popis nehnuteľnosti

Ponúkam na predaj rodinný dom - novostavba, vo vyhľadávanej lokalite Martin - Tomčany. 

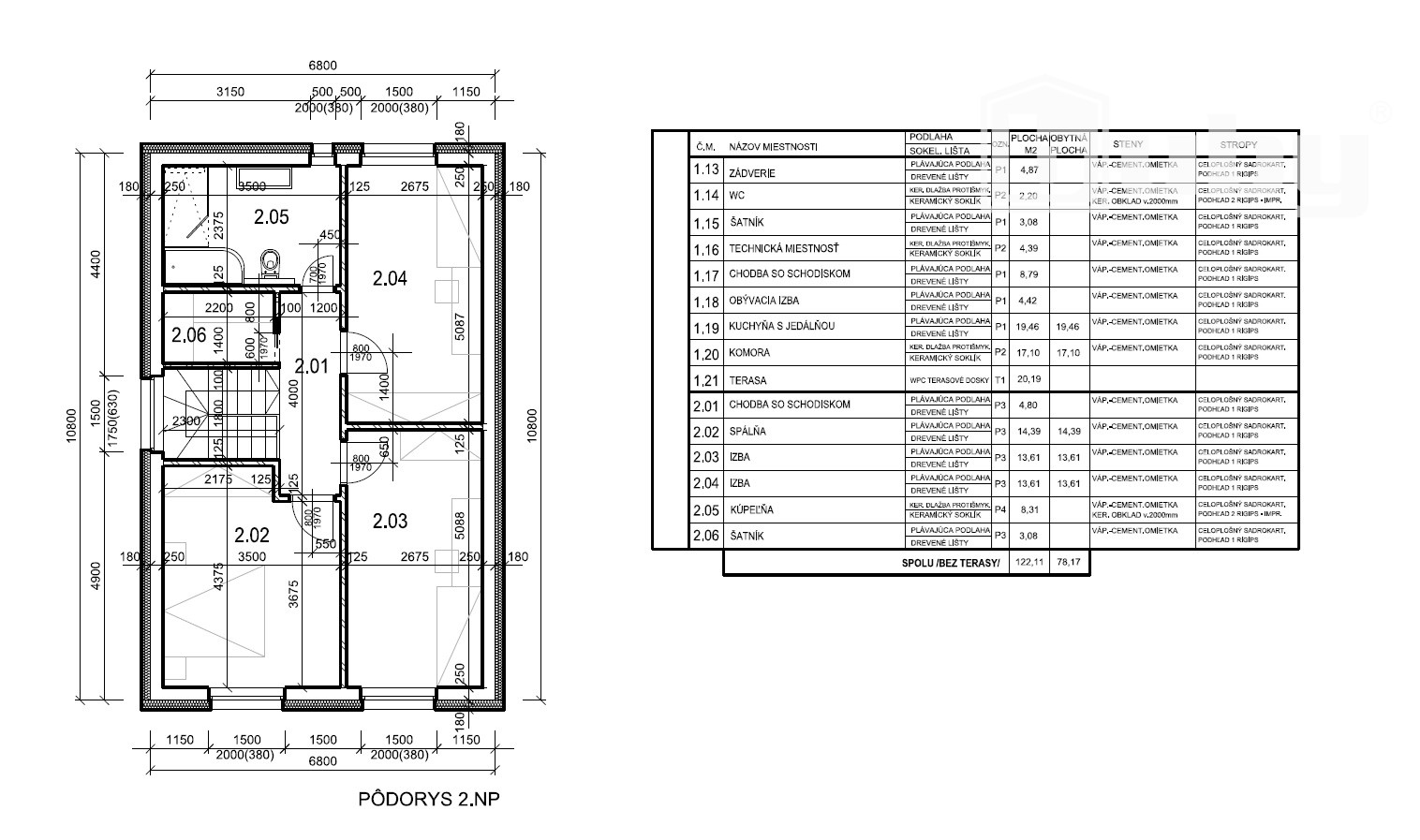
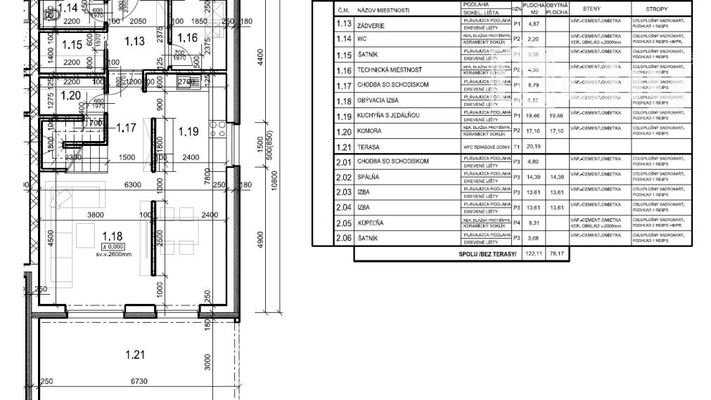
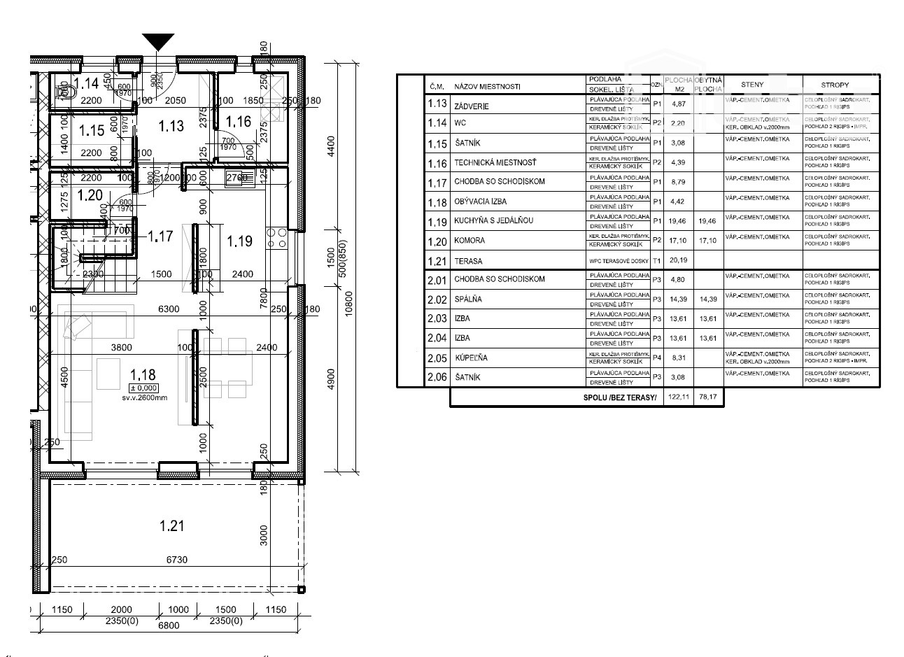
Jedná sa o časť dvojdomu, ktorý je postavený na rovinatom pozemku o celkovej výmere 279 m2, zastavaná plocha domu 80 m2, celková podlahová plocha 122 m2.

Na prízemí sa nachádza vstupná chodba s toaletou, kúpeľňa, technická miestnosť, komora / špajza, veľká obývacia izba spojená s kuchyňou a vstupom na terasu. 

Na poschodí sa nachádzajú tri samostatné nepriechodné izby, šatník a kúpeľňa s toaletou.

Použité sú vysokokvalitné materiály s precíznym spracovaním. Dom sa predáva v štádiu holodom s možnosťou dokončenia na kľúč. 

  • murivo Ytong Lambda 
  • zateplenie EPS 180 mm
  • betónové potery
  • sádrové omietky
  • napojený na všetky IS: verejný vodovod, elektrina, kanalizácia
  • dom bude vymaľovaný (biely hygienický nástrek)
  • kúrenie je zabezpečené tepelným čerpadlom zn. HAIER (nízke mesačné náklady)

Nachádza vo vyhľadávanej lokalite s výbornou dostupnosťou do mesta.

Pre bližšie informácie alebo záujem o obhliadku, ma neváhajte kontaktovať.

Cena 369 000 €.

Možnosť odpočtu DPH ! ! !

Kontakt: Mgr. Milan Valušek, telefón:  0904 742 743, e-mail: valusek.m@bubyreality.sk

Vlastnosti

Status:
aktívne
Vlastníctvo:
osobné
Plocha pozemku:
279 m2
Typ zeme:
rovina
Teritórium:
Intravilán
Úžitková plocha:
279 m2
Zastavaná plocha:
80 m2
Podlahová plocha:
122 m2
Stav:
novostavba
Počet izieb:
4
Energetický certifikát:
A
Energetická náročnosť budovy:
Nízkoenergetický
Typ budovy:
tehla
Typ výbavy:
holopriestor
Terasa:
áno
Špajza:
áno
Sklad:
áno
Rok výstavby:
2025
Rok kolaudácie:
2026
Počet poschodí od prízemia vyššie:
2
Celková plocha:
279 m2
Počet terás:
1
Orientácia:
juhozápad
Vykurovanie - centrálne:
áno
Vykurovanie - podlahové:
áno
Internet:
áno
Optická sieť:
áno
Status:
aktívne
Vlastníctvo:
osobné
Plocha pozemku:
279 m2
Typ zeme:
rovina
Teritórium:
Intravilán
Úžitková plocha:
279 m2
Zastavaná plocha:
80 m2
Podlahová plocha:
122 m2
Stav:
novostavba
Počet izieb:
4
Energetický certifikát:
A
Energetická náročnosť budovy:
Nízkoenergetický
Typ budovy:
tehla
Typ výbavy:
holopriestor
Terasa:
áno
Špajza:
áno
Sklad:
áno
Rok výstavby:
2025
Rok kolaudácie:
2026
Počet poschodí od prízemia vyššie:
2
Celková plocha:
279 m2
Počet terás:
1
Orientácia:
juhozápad
Vykurovanie - centrálne:
áno
Vykurovanie - podlahové:
áno
Internet:
áno
Optická sieť:
áno

Informatívna úverová kalkulačka

Pozrieť na mape

Maklér

Mgr. Milan Valušek

Mgr. Milan Valušek

maklér

  • Slovensky
  • Česky
  • English

Radi Vám poradíme

Podobné nehnuteľnosti