| Interné ID: | MT5021504 |
|---|---|
| Ulica: | Slovany |
| Mestská časť: | Jahodníky |
| Obec: | Martin |
| Okres: | Martin |
| Kraj: | Žilinský kraj |
| Druh: | Domy |
| Typ: | Predaj |
| Typ domu: | Rodinný dom |
| Iné: |
Ponúkame na predaj rozostavanú platňu na 4 izbový bungalov, v obci Slovany okres Martin.
Možnosť okamžitého pokračovania vo výstavbe, žiadne ďalšie zdĺhavé administratívne úkony.
Na výber sú dve platne s pozemkami o výmere 600 m2, v novovznikajúcej časti obce Slovany - Borovice.
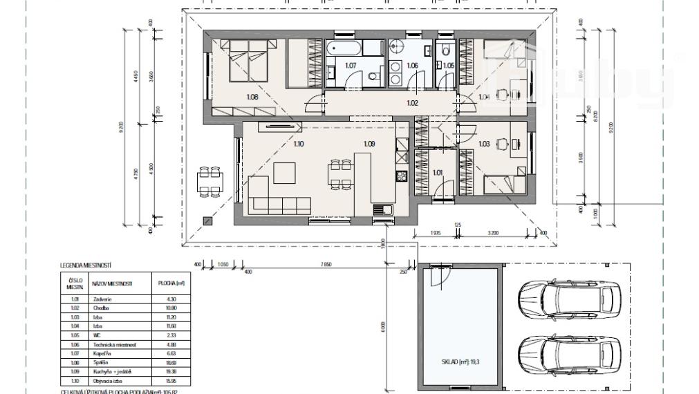
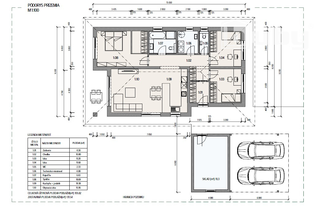
Na tejto platni je naprojektovaný 4 izbový bungalov, zastavaná plocha domu 132 m2, úžitková plocha 106 m2.
Dispozícia domu je rozdelená na dennú a nočnú časť. Pozostáva zo vstupnej chodby so zádverím, troch samostatých nepriechodných izieb, kúpeľne, samostatnej toalety, technickej miestnosti a veľkej obývacej izby spojenenej s kuchyňou a výstupom na terasu.
Napojenie na IS : elektrina, obecný vodovod, kanalizácia.
Cena rozostavanej platne spolu s pozemkom 95 000 €.
Pre viac informácií ma neváhajte kontaktovať: Mgr. Milan Valušek, tel. 0904 742 743, mail: valusek.m@bubyreality.sk
maklér