
Interné ID: | MT5021492 |
---|---|
Ulica: | Hrdinov SNP |
Mestská časť: | Stráne |
Obec: | Martin |
Okres: | Martin |
Kraj: | Žilinský kraj |
Druh: | Domy |
Typ: | Predaj |
Typ domu: | Chata |
Iné: |
Ponúkame na predaj krásnu 2-podlažnú chatu, v Martine na Stráňach, ktorá sa týči nad okolitým krajinou a ponúka dokonalý únik z ruchu mesta. Táto očarujúca chata sa nachádza v srdci prírody a ponúka všetko, čo potrebujete pre relaxáciu a oddych.
Vlastnosti nehnuteľnosti:
- 3 podlažia poskytujúce dostatok miesta pre rodinu alebo priateľov ako aj priestor pre skladovanie sezónnych vecí, či športového vybavenia.
- Priestranná terasa s krbom, s nádherným výhľadom na okolitú krajinu.
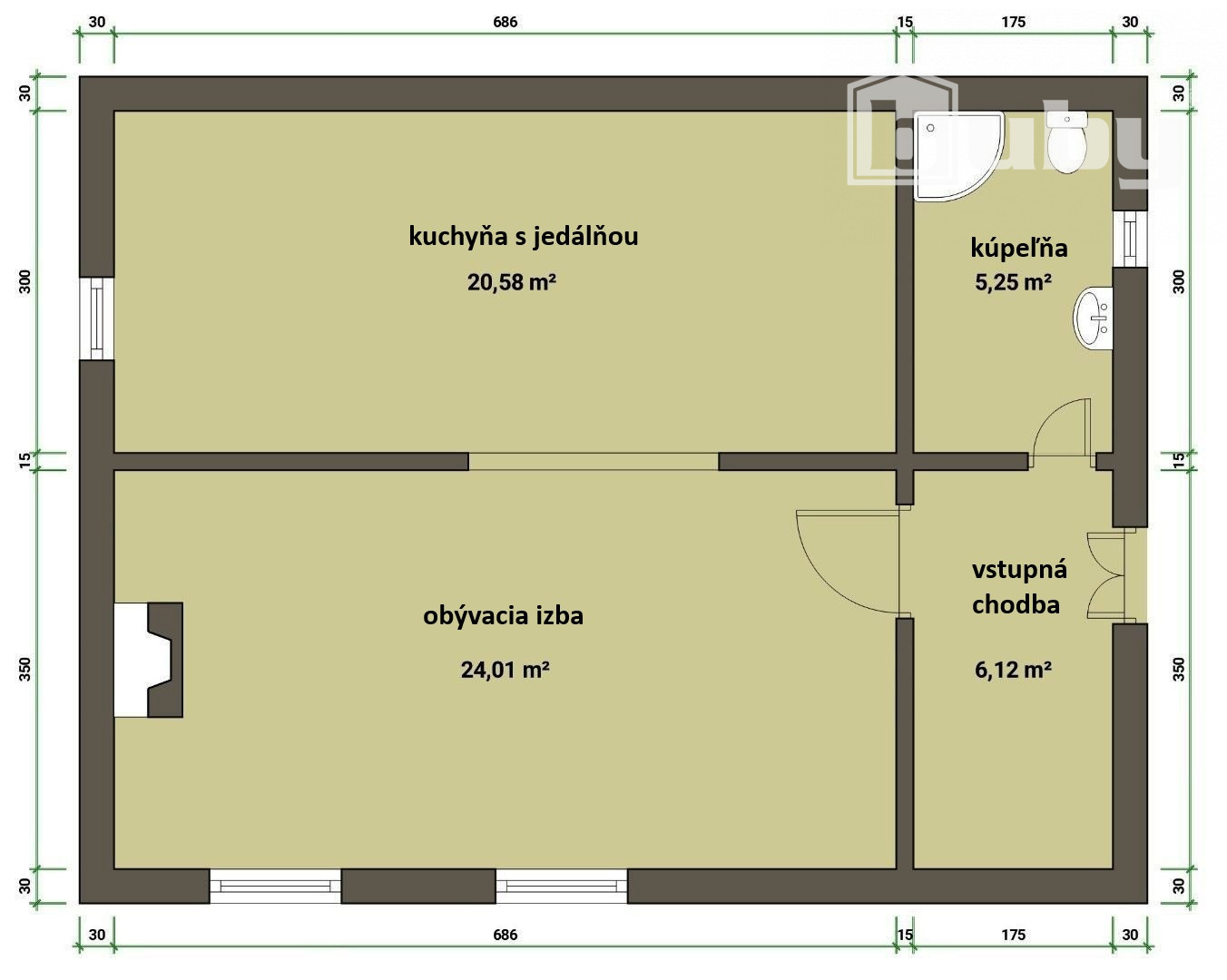
- Kuchyňa s modernými spotrebičmi a dostatkom úložného priestoru.
- Útulná obývacia izba krbom.
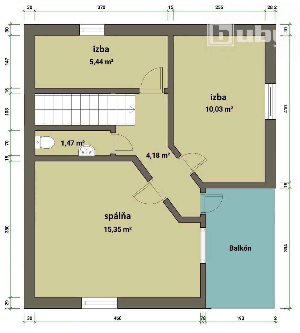
- Tri samostatné spálne, s drevenými prvkami.
- Dve kúpeľne a dve toalety, pre vaše pohodlie a relax.
- Samostatný apartmán na prízemí s terasou.
- Úložný priestor v podkroví s možnosťou prerobenia na ďalšie izby.
V chate je zavedená voda z vlastnej studne a elektrika. Postavená je z tehly a je zateplená, čím je znížená spotreba pri vykurovaní objektu. Strecha je pokrytá plechovou krytinou - škridľoplech - realizacia pred 10r.
Prístrešok bol vybudovaný pred 5r. Vykurovanie je riešené krbom, v kombinácii s elektrickými radiátormi. Vlastná žumpa objem 6m3.
Objekt je zabezpečený alarmom, s presmerovaním na mobilný telefón a požiarnym hlásičom.
Predáva sa kompletne zariadená. Vhodná k okmažitému užívaniu alebo prenájom.
Lokalita: Chata sa nachádza v tichej a pokojnej lokalite Martin - Stráne, zároveň však v blízkej dostupnosti do mesta. Ideálne miesto na oddych a načerpanie energie.
Pre viac informácií ma neváhajte kontaktovať: Mgr. Milan Valušek, tel. 0904 742 743, mail: valusek.m@bubyreality.sk
Nepremeškajte túto príležitosť zažiť prírodu na vlastnej koži a vytvoriť si spomienky, ktoré budete chcieť zdieľať so svojimi blízkymi. Nechajte sa očariť kúzlom tejto chaty a vytvorte si svoj raj v srdci prírody.
Chatu nieje možné financovať úverom.
Cena 165 000,- €
Mesačné náklady do 200,- €
maklér