Používame cookies

Súbory cookie a ďalšie technológie sledovania používame na zlepšenie vášho zážitku z prehliadania našich webových stránok, na to, aby sme vám zobrazovali prispôsobený obsah a cielené reklamy, na analýzu návštevnosti našich webových stránok a na pochopenie toho, odkiaľ naši návštevníci prichádzajú. Viac info

 

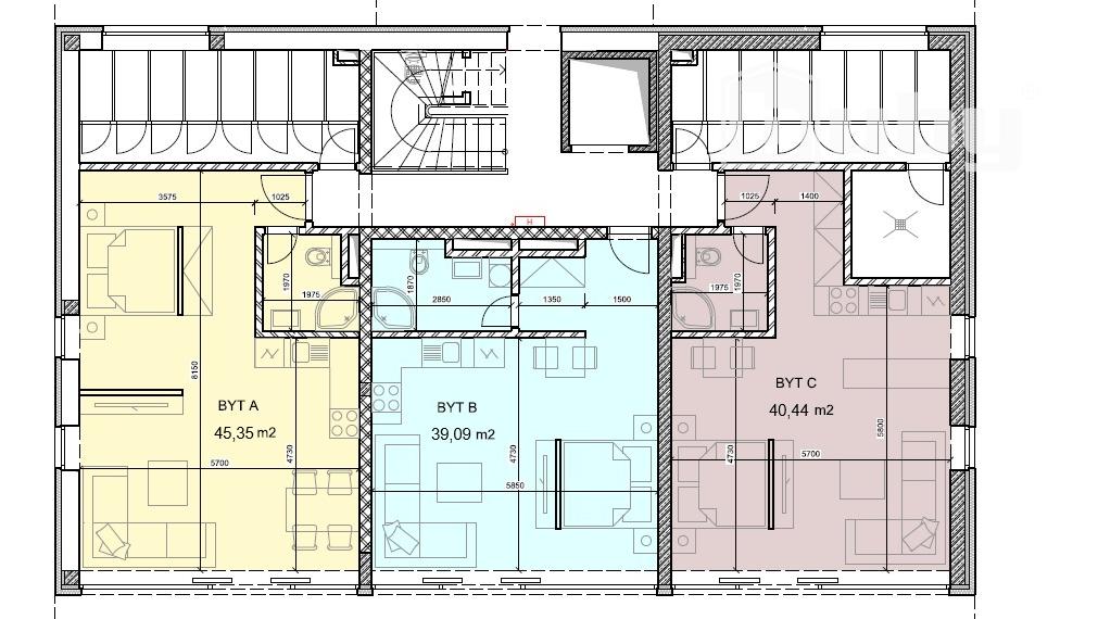
2 izbový byt na predaj, apartmán IB_NP_1A, novostavba v Martine, - širšie centrum.

Interné ID: MT5021547
Ulica: Ruppeldtova
Mestská časť: Jahodníky
Obec: Martin
Okres: Martin
Kraj: Žilinský kraj
Druh: Byty
Typ: Predaj
Typ bytu: 2-izbový byt
Iné:
135 300 €

Popis nehnuteľnosti

Ponúkam na predaj apartmán / komerčný nebytový priestor v novom developerskom projekte "Byty Ruppeldtova", nachádzajúci sa vo vyhľadávanej lokalite širšieho centra mesta Martin, konkrétne na ulici Ruppeldtova, podľa ktorej je projekt aj pomenovaný.

Apartmán / nebytový priestor I.B_NP_1A, má celkovú výmeru 45,35 m2, (apartmán / nebytový priestor 41,46 m2 + 3,89 m2 kúpeľňa s WC), nachádza sa na 1/3 podlaží. 

Jedná sa o veľký otvorený priestor s výkladom, spálne a kúpeľne s toaletou. Má dva vstupy - hlavný vchod do bytovky alebo od ulice.  

Ideálny na krátkodobý prenájom, alebo ako obchodné priestory, kancelárie, showroom, zdravotnícke zariadenie, kozmetický alebo kadernícky salón a ďalšie podnikateľské aktivity.

Bytový dom I.B v ktorom sa nachádza aj tento nebytový priestor, pozostáva z ôsmich bytových jednotiek (z čoho 6 bytov je trojizbových a dva byty sú 2 izbové) a troch apartmánov / komerčných nebytových priestorov.

Projekt vďaka svojej výnimočnej lokalite, ponúka kompletnú občiansku vybavenosť, ktorá zahŕňa v pešej dostupnosti niekoľkých minút školy, škôlky, potraviny, nákupné centrum, reštaurácie, a tiež nemocnicu, polikliniky a iné zdravotnícke zariadenia.

Momentálnekolaudujeme, predpokladaný termín ukončenia je máj 2026.

Cena apartmánu / nebytového priestoru je 135 300 € s DPH.

K bytu je potrebné dokúpiť parkovacie miesto v cene 12 300 € s DPH. 

V prípade záujmu o viac informácií ma kontaktujte: Mgr. Milan Valušek, tel. 0904 742 743, mail: valusek.m@bubyreality.sk, alebo na stránke bytyruppeldtova.sk

Vlastnosti

Status:
aktívne
Vlastníctvo:
osobné
Úžitková plocha:
45.35 m2
Zastavaná plocha:
45.35 m2
Podlahová plocha:
45.35 m2
Stav:
novostavba
Počet izieb:
1
Energetický certifikát:
A
Energetická náročnosť budovy:
Nízkoenergetický
Typ budovy:
tehla
Typ výbavy:
holopriestor
Rok výstavby:
2025
Rok kolaudácie:
2026
Počet poschodí od prízemia vyššie:
4
Pozícia:
Prízemie
Poschodie:
1
Celková plocha:
45.35 m2
Počet vonkajších parkovacích miest:
1
Cena vonkajších parkovacích miest:
12300 €
Orientácia:
východ
Vykurovanie - centrálne:
áno
Vykurovanie - podlahové:
áno
Internet:
áno
Optická sieť:
áno
Status:
aktívne
Vlastníctvo:
osobné
Úžitková plocha:
45.35 m2
Zastavaná plocha:
45.35 m2
Podlahová plocha:
45.35 m2
Stav:
novostavba
Počet izieb:
1
Energetický certifikát:
A
Energetická náročnosť budovy:
Nízkoenergetický
Typ budovy:
tehla
Typ výbavy:
holopriestor
Rok výstavby:
2025
Rok kolaudácie:
2026
Počet poschodí od prízemia vyššie:
4
Pozícia:
Prízemie
Poschodie:
1
Celková plocha:
45.35 m2
Počet vonkajších parkovacích miest:
1
Cena vonkajších parkovacích miest:
12300 €
Orientácia:
východ
Vykurovanie - centrálne:
áno
Vykurovanie - podlahové:
áno
Internet:
áno
Optická sieť:
áno

Informatívna úverová kalkulačka

Pozrieť na mape

Maklér

Mgr. Milan Valušek

Mgr. Milan Valušek

maklér

  • Slovensky
  • Česky
  • English

Radi Vám poradíme

Podobné nehnuteľnosti