
Interné ID: | IB_NP_2B |
---|---|
Ulica: | Ruppeldtova |
Mestská časť: | Jahodníky |
Obec: | Martin |
Okres: | Martin |
Kraj: | Žilinský kraj |
Druh: | Byty |
Typ: | Predaj |
Typ bytu: | 1-izbový byt |
Iné: |
Exkluzívne ponúkam na predaj apartmán / komerčný nebytový priestor v novom developerskom projekte "Byty Ruppeldtova", nachádzajúci sa vo vyhľadávanej lokalite širšieho centra mesta Martin, konkrétne na ulici Ruppeldtova, podľa ktorej je projekt aj pomenovaný.
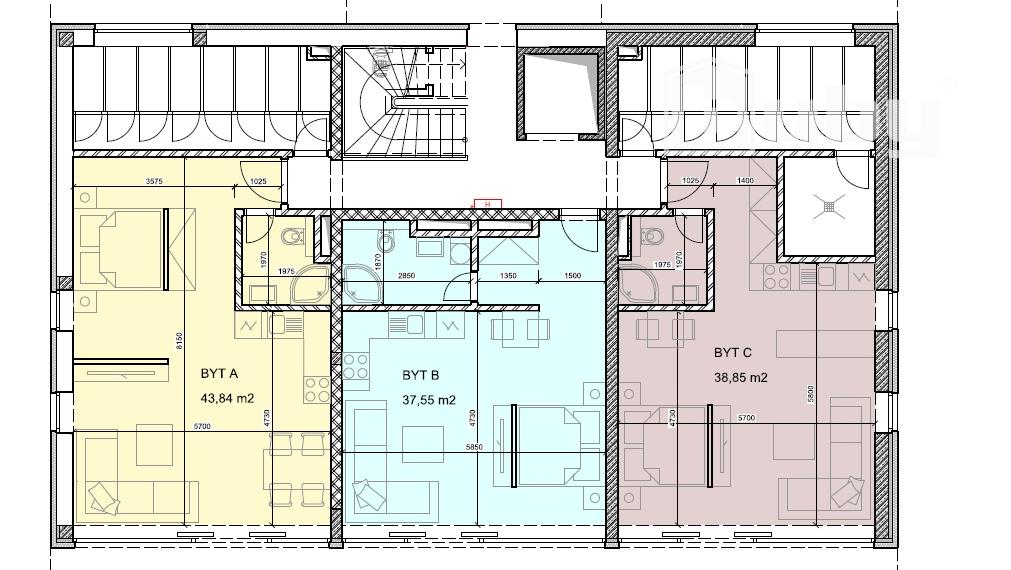
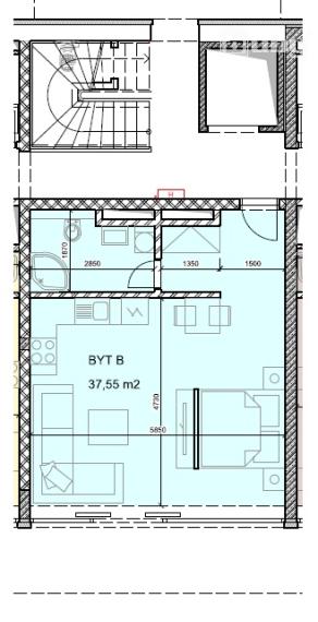
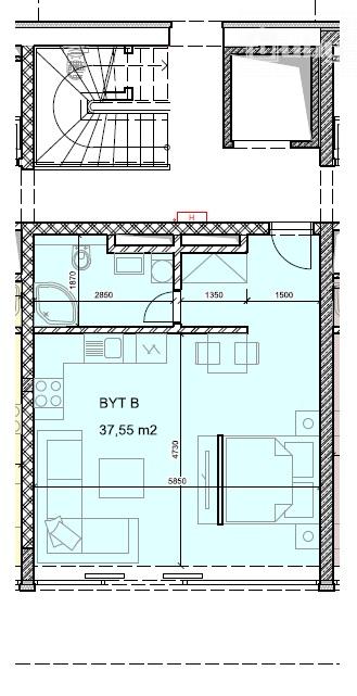
Ponúkaný apartmán / nebytový priestor I.B_NP_2B, má celkovú výmeru 37,55 m2, (aprtmán / nebytový priestor 32,22 m2 + 5,33 m2 kúpeľňa s WC), nachádza sa na 1/3 podlaží.
Jedná sa o otvorený priestor s výkladom, s dvoma vstupmi - hlavný vchod do bytovky alebo od ulice.
Ideálny na krátkodobý prenájom, alebo ako obchodné priestory, kancelárie, showroom, zdravotnícke zariadenie, kozmetický alebo kadernícky salón a ďalšie podnikateľské aktivity.
Priestory sú predávané s vyšším stredným štandardom, ktorý zahŕňa vstupné bezpečnostné dvere, interiérové dvere, omietky stien a stropov, keramický obklad, dlažbu a sanitu, podlahové kúrenie, príprava na klimatizáciu, príprava pre vonkajšie žalúzie. Štandard neobsahuje kuchynskú linku, zariadenie a svietidlá.
Zámerom tohto developerského projektu je vybudovať moderný bytový komplex, pozostávajúci zo šiestich bytových domov, celkom s 57 - mimi bytovými jednotkami, 7 - mimi komerčnými nebytovými priestormi, vrátane dostatočného počtu vnútorných a vonkajších parkovacích miest, spolu 6 garáží a 76 parkovacích miest.
Výstavba prvej etapy bola úspešne ukončená v roku 2024, všetky byty a nebytové priestory sú predané.
V druhej etape prebieha výstaba ďalších dvoch bytových domov Ruppeldtova I.B a Ruppeldtova II.B.
Bytový dom I.B v ktorom sa nachádza aj tento nebytový priestor, pozostáva z ôsmich bytových jednotiek (z čoho 6 bytov je trojizbových a dva byty sú 2 izbové) a troch komerčných nebytových priestorov.
Projekt vďaka svojej výnimočnej lokalite, ponúka kompletnú občiansku vybavenosť, ktorá zahŕňa v pešej dostupnosti niekoľkých minút školy, škôlky, potraviny, nákupné centrum, reštaurácie, a tiež nemocnicu, polikliniky a iné zdravotnícke zariadenia.
Momentálne je priestor vo výstavbe, predpokladaný termín ukončenia a kolaudácie je koniec leta 2026.
Cena nebytového priestoru je 98 400 € s DPH. K bytu je potrebné dokúpiť parkovacie miesto v cene 12 300 € s DPH.
V prípade záujmu o viac informácií ma kontaktujte: Mgr. Milan Valušek, tel. 0904 742 743, mail: valusek.m@bubyreality.sk, alebo na stránke bytyruppeldtova.sk
maklér